Algemene kenmerken
-
Optimale isolatie : Gemaakt van 100 mm dikke sandwichpanelen die zorgen voor een goede warmteregeling in zomer en winter (warmtetransmissiecoëfficiënt: 0,38 W/m²K).
-
Complete uitrusting : Elektrische, ventilatie-, water- en sanitaire installaties inbegrepen.
-
Duurzame constructie : hoogwaardige materialen die weinig onderhoud vergen.
-
Mobiliteit : Eenvoudig te vervoeren en indien nodig opnieuw te installeren.
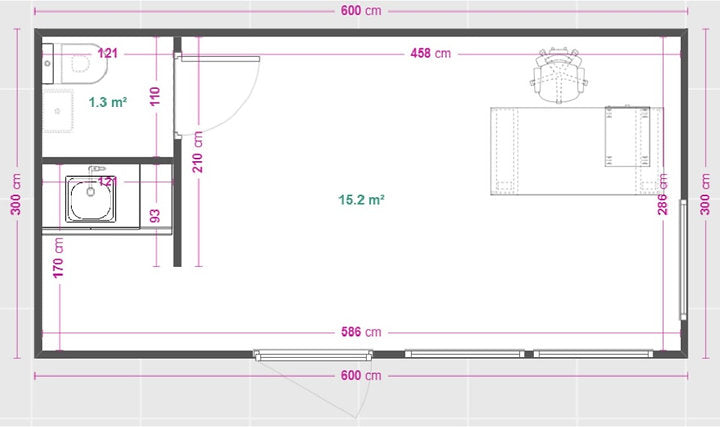
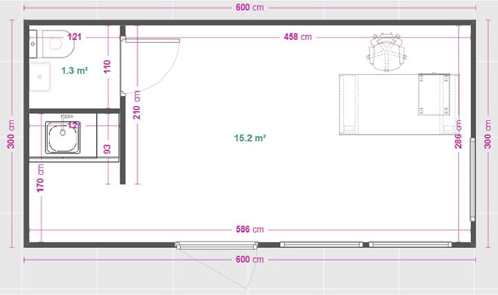
Externe afmetingen
-
Lengte : 6,0 m
-
Breedte : 3,0 m
-
Binnenhoogte : 2,6 – 2,5 m
Technische kenmerken
-
Structuur : Frameloze sandwichpanelen
-
Dak : Enkelzijdige helling
-
Vloer : Sandwichpaneel + 15 mm OSB-paneel + 2,2 mm PVC-bekleding
-
Elektriciteit :
- 230V zekeringen
- 5 stopcontacten
- 2 schakelaars
- 2 lampen
-
Ventilatie : 1 geïntegreerd ventilatierooster
-
Timmerwerk :
-
Binnenstalen deur (80 cm)
-
Vitrinekast 120x210 cm (3 stuks)
-
Glazen entreedeur 110x210 cm
Voorzieningen inbegrepen
-
Sanitaire voorzieningen : Compacte toiletten met fonteintje
-
Warm water : 5L elektrische boiler
-
Keukenblok : Set van 4 glanzend witte units
Voordelen
-
Turnkey-oplossing voor een functioneel en autonoom kantoor
-
Geschikt voor gebruik het hele jaar door dankzij de hoogwaardige isolatie
-
Gemakkelijk te vervoeren om te voldoen aan veranderende zakelijke behoeften
Dit modulaire kantoor van 18 m² combineert comfort, functionaliteit en duurzaamheid en is ideaal voor een tijdelijk kantoor, een werkplek op locatie of een zelfstandige module.